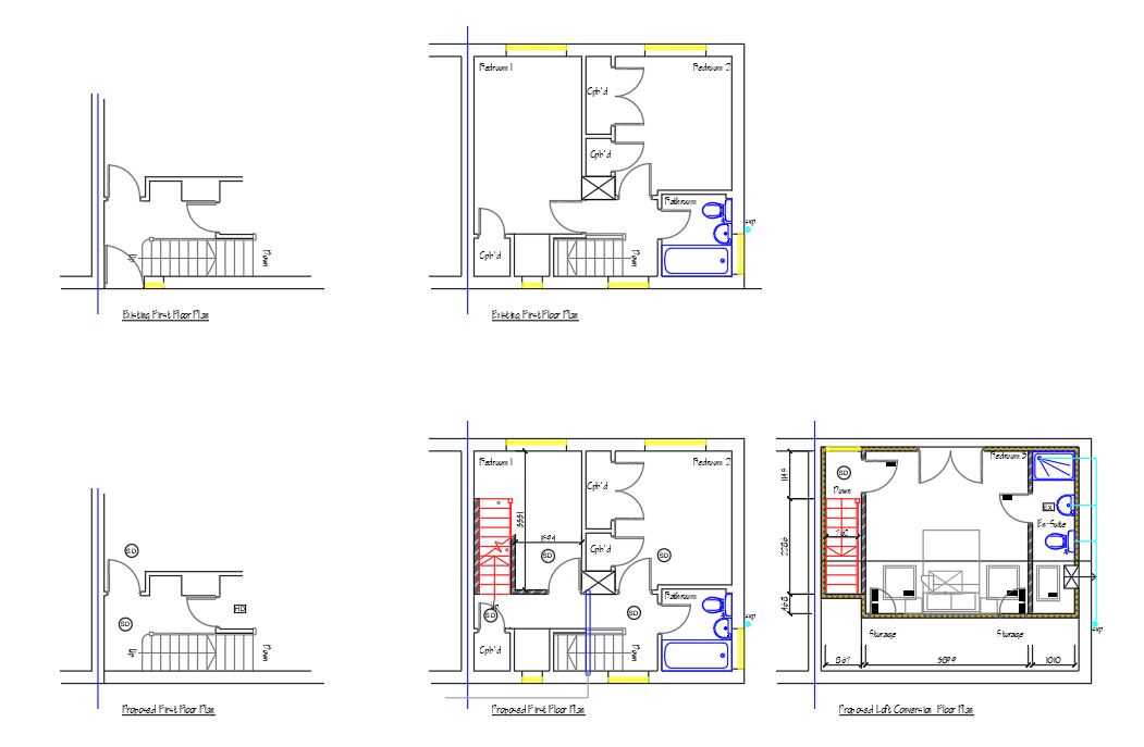
Floor Plans – Ascot, Berkshire